
Die Lage Poststraße
Die Lutherstadt Eisleben ist die zweitgrößte Stadt im Landkreis Mansfeld-Südharz im östlichen Harzvorland in Sachsen-Anhalt. Bekannt ist sie als Geburts- und Sterbeort Martin Luthers. Zu Ehren des größten Sohnes der Stadt führt Eisleben seit 1946 den Beinamen „Lutherstadt“. (Wikipedia).
Dreh- und Angelpunkt bildet der Eisleber Marktplatz. Hier finden sich zahlreiche Geschäfte, gastronomische Einrichtungen und andere Gewerbetreibende.
Die Praxiseinheit befindet sich in der Poststraße, unweit vom Marktplatz entfernt. Sie ist gut zu Fuß, aber auch mit dem PKW erreichbar. Die Poststraße befindet sich inmitten der Eisleber Innenstadt und ist eine bekannte Adresse. In der näheren Umgebung befinden sich weitere Ärzte sowie Apotheken. In dem Objekt selbst, ist noch ein betreutes Wohnen untergebracht.

Das Objekt
Eckdaten:
• Büro- oder Praxiseinheit
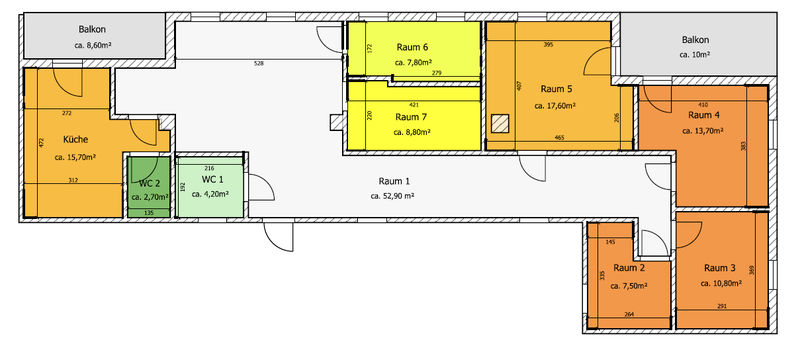
• Gewerbefläche: 151,50 m²
• Etage: 3. Obergeschoss
• Aufzug vorhanden
• 2 Balkone
• 8 Räume
• 2 WCs
Miete: Nach Vereinbarung
Beschreibung:
Am Standort Poststraße sind 2022 zwei moderne Neubauten entstanden. Die Praxiseinheit befindet sich im vorderen Haus, dem sogenannten Quadrat, welches zum 01.07.2022 bezugsfertig ist. Hier wird vom Pflegedienst Wend im Erdgeschoss, 1. und 2. Obergeschoss betreutes Wohnen angeboten.
Die zur Vermietung stehende Einheit befindet sich im 3. Obergeschoss, ist aber bequem mit dem Aufzug zu erreichen, so dass auch Menschen mit Handicap ohne Probleme in die Praxis gelangen können. Hier kann man sofort einziehen.
Die Praxis selbst ist hell und freundlich. Die Wände sind weiß, als Bodenbelag wurde ein robuster und pflegeleichter Designbelag in Holzoptik verlegt. Insgesamt steht eine Gewerbefläche von 151,50 m² und acht Räume zur Verfügung. Die Einheit wurde als allgemeine Arztpraxis konzipiert, einer anderweitigen Nutzung, z.B. als Büro oder Kanzlei steht jedoch ebenfalls nichts im Wege.
Der große Wartebereich mit ca. 52 m² bietet einen freundlichen Empfang und viele Möglichkeiten. Insgesamt stehen sieben weitere Zimmer und zwei WCs zur individuellen Nutzung zur Verfügung. Zur Gewerbeeinheit gehören außerdem 2 großzügige
Balkone mit tollem Ausblick in Richtung Süßer See.

Grundrissskizze:

Ihr Ansprechpartner:
Wohnungsbaugesellschaft der Lutherstadt Eisleben mbH
Schloßplatz 2
06295 Lutherstadt Eisleben
Frau Nicole Posselt
Tel.: 03475 678-115
Emai: n.posselt@wobau-eisleben.de